平屋リノベーション工事【鹿児島県姶良市Ⅿ様邸】
※写真をタップすると、拡大写真をご覧いただけます
ビフォアアフター
※クリック・タップすると写真を拡大して見ることができます
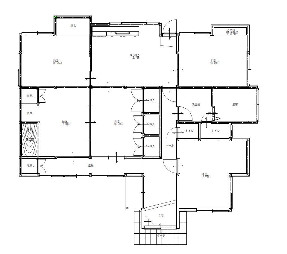
間取り図
担当者の声
-
築40数年の平屋木造住宅の全面リノベーションです。
長年住まわれておられる実家を引き継がれて、雨漏りと使いやすくされたいご要望の元、進めさせて頂きました
家族編成から4LDKとトイレは2か所という間取りで、LDKの配置は、センターLDK(両側を部屋に挟まれる)配置となりました。少しでも採光が取れる様に前後の窓は大きくしました。
18畳LDKのキッチンは、造作と水回りメーカーのカップボードと組み合わせて収納は広く取れました。冷蔵庫もリビングから見えない配置で勝手口も設置致しました。ダイニングとリビングは柱が1本と見せ梁が残り、三協アルミ社の和ジャパニズムとトラッドリゾートを組み合わせた色合いと致しました。
梁がライティングレールと干渉したため、吊り下げタイプでの対応です
寝室も、床の間部を板間にして西日があまり差し込まない様に高所に横長の滑り出し窓と致しました。洗面所3畳が広く浴室からの採光でも明るく感じられるよう床は水回り対応床のマーブル調を採用しました。お部屋が明るく感じられます。
洗面台もTOTOエスクアLSシリーズでミラーが下まであるので広い感じます。浴室も1620サイズ(1.25坪)のTOTOサザナを採用 床ワイパー洗浄で洗い場の掃除が楽になりました。外観も、KMEWの光セラサイディング 屋根も形状を入母屋から寄棟と変更してこちらもKMEWの軽量瓦ルーガを採用しました。軽量の為、住まいの重量が軽くなり耐震対策となります。
外構も、門扉部を撤去して、駐車場が2台→3台となりました。
見違える出来栄えとなり、中も外も新築同様の仕上がりとなりました。M様有難うございました。









